LOGEMENT COALLIA

LOGEMENT COALLIA

CLIENT / MAÎTRISE D'OUVRAGE : Coallia Habitat

LIEU : Paris (75)

MONTANT : 1,4 M€

SURFACE : 550 m2 SDP

DATE : 2018

OBSERVATIONS : Mission PC à PCG

 

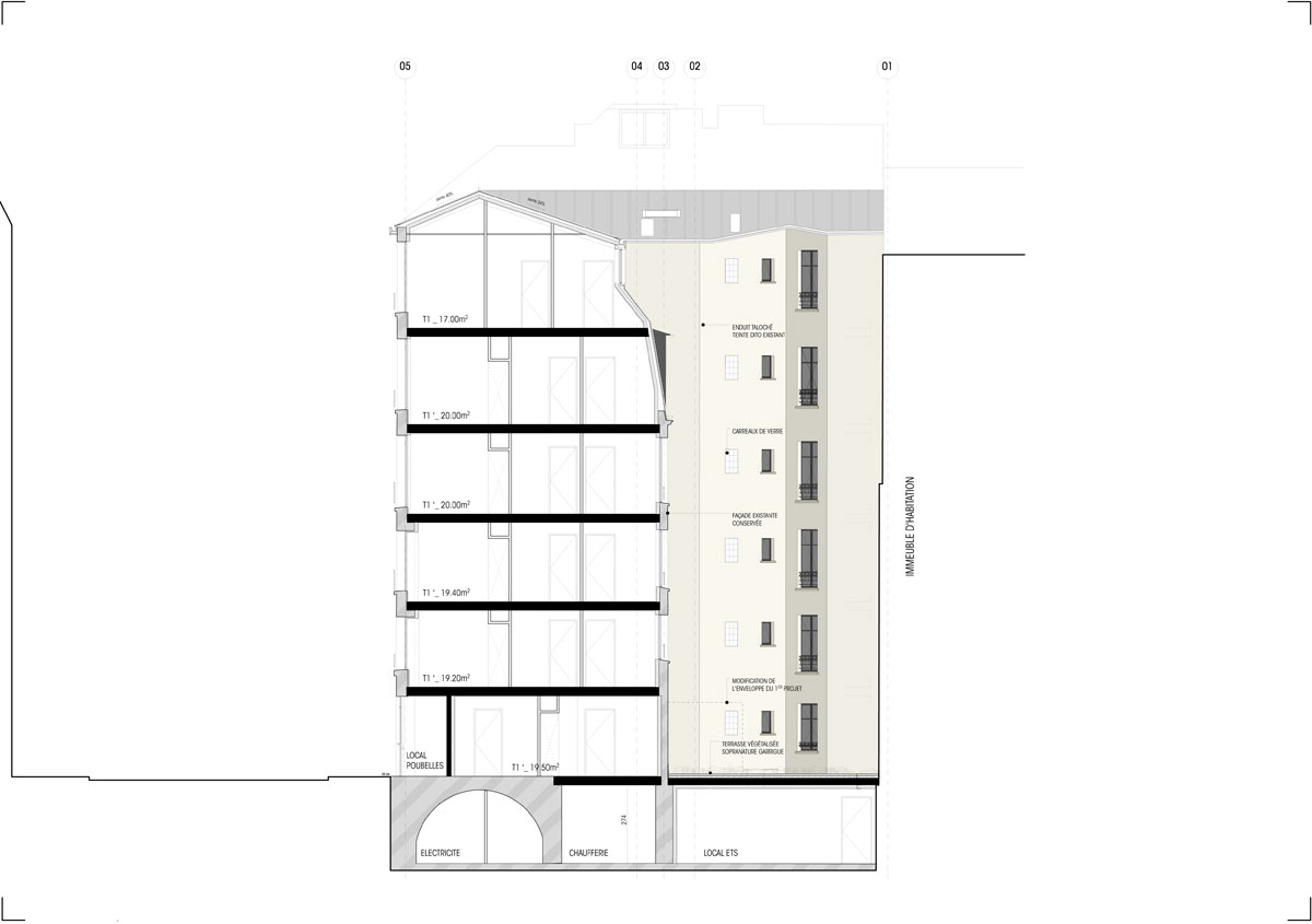
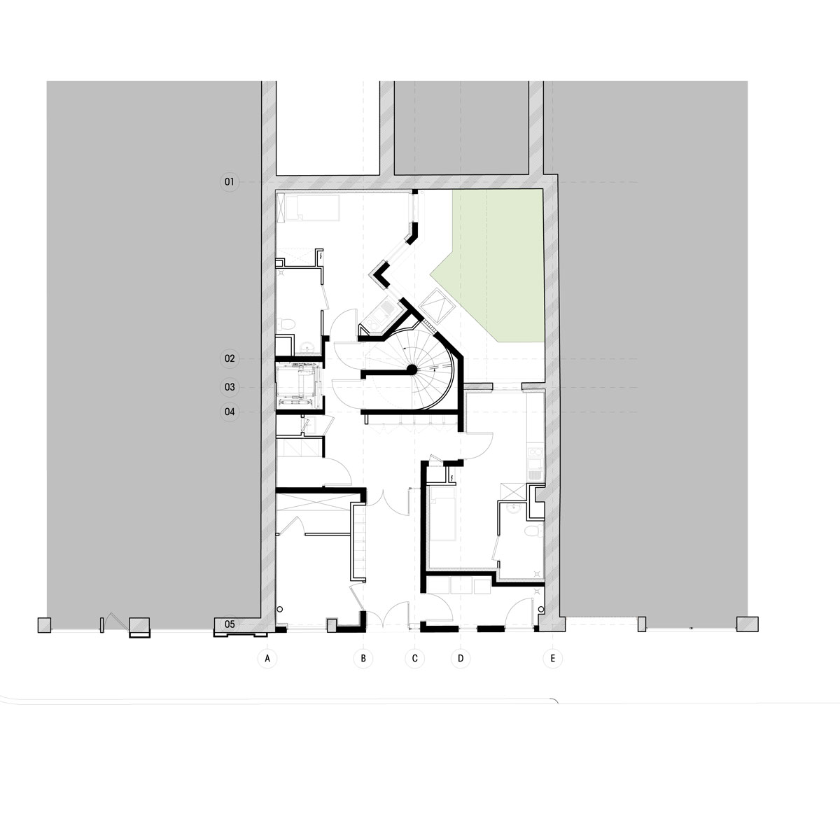
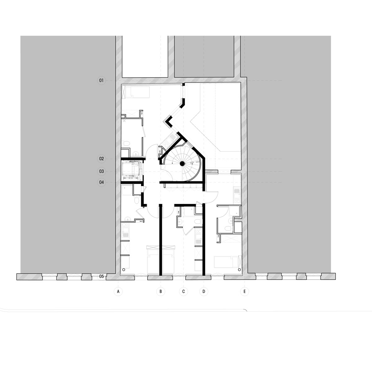
Réhabilitation d'un immeuble en résidence sociale - 22 logements collectifs.

Date

20 janvier 2022

Tags

Logements individuels et collectifs

dcaa02

30 BD DE LA LIBÉRATION
13001 MARSEILLE – FRANCE